Москва
Важно!

В других городах официальных офисов компании ВИРМАК нет!

(есть случаи работы под нашим брендом непорядочных конкурентов)

+7 495 320 00 06
заказать звонок
Москва
Важно!

В других городах официальных офисов компании ВИРМАК нет!

(есть случаи работы под нашим брендом непорядочных конкурентов)

+7 495 320 00 06
заказать звонок

К-М-102

К-М-102

Стоимость домокомплекта от 1 734 984 К

подать заявку на кредит

Характеристики проекта:

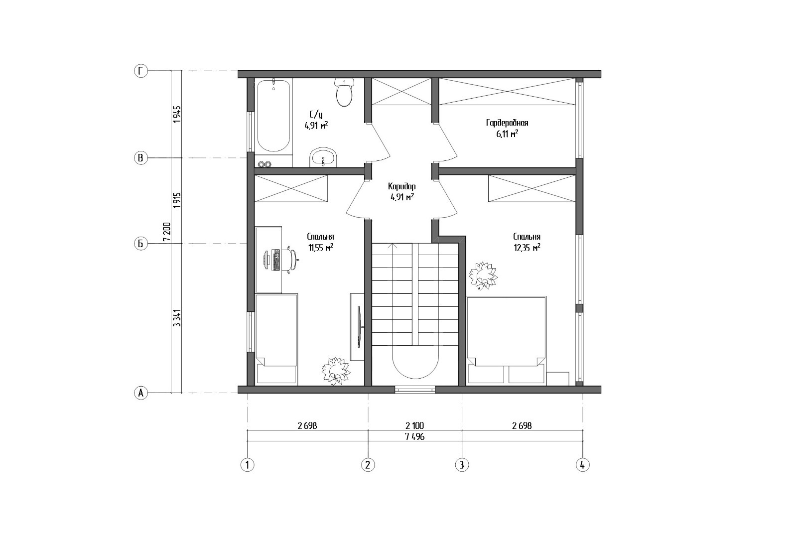
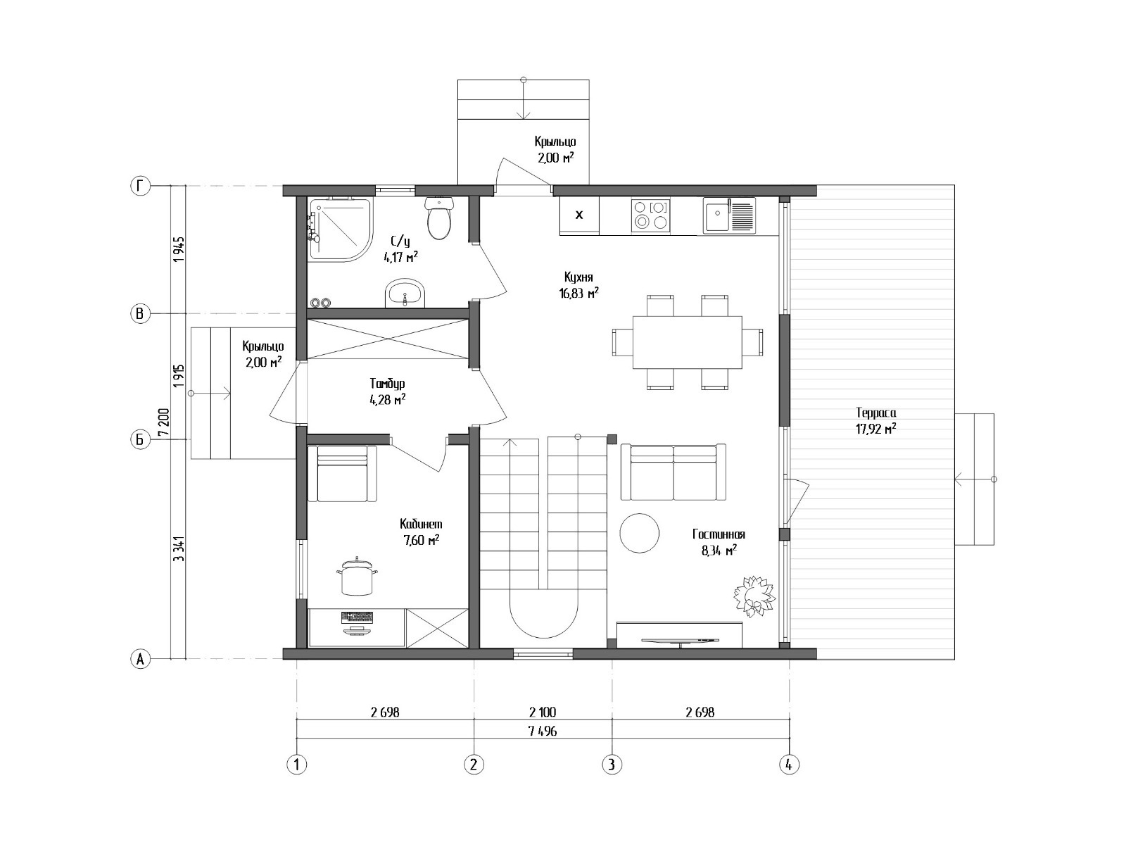
Площадь, м² 102
Площадь застройки, м² 75.92
Площадь жилая, м² 31.5
Длина, м 7.496
Ширина, м 7.2
Высота, м 7.9

Архитектурные элементы

План этажа м 1:100

План К-М-102

План этажа м 1:100

План К-М-102

ФУНДАМЕНТ И ПЕРЕКРЫТИЕ

от 1 082 250 ₽

Базовая комплектация

от 3 450 850 ₽

Окна

от 428 900 ₽

Домокомплект

от 1 734 984 ₽

ФУНДАМЕНТ И ПЕРЕКРЫТИЕ

от 1 082 250 ₽

Окна

от 428 900 ₽

Базовая комплектация

от 3 450 850 ₽

Домокомплект

от 1 734 984 ₽

Уважаемые заказчики!

Мы с радостью предоставим Вам готовые проекты по лучшим ценам!

С готовым проектом Вы сможете:

подать документы для получения разрешения на строительство.

самостоятельно начать строительство или приобрести
готовый домокомплект

Гарантия:

По нашим проектам мы уже вели строительство, а значит,
значительно снижен риск Вашего самостоятельного строительства.

Самая лучшая цена за проект!!!

Внимание!

Для проектирования и строительства зданий из кирпича, монолита, разных видов блока,
просим Вас посетить наш сайт: 100proekt.ru

Коробка из СИП-панелей с ЦСП

вариант возможного конструктива от ВИРМАК по вашему желанию узлы и материалы могу быть изменены

1

Фундаменты

(тип фундаментов на выбор)*

Устройство ж/б свай, деревянного ростверка и sip полы

А
Устройство фундаментных свай:

ж/б буроналивные сваи Ф 250 мм, проф. труба 100*100
мм, арматура 12 мм.

Устройство ростверка из пиломатериала общим сечением 146*138 мм (146*92). Монтаж перекрытия пола первого
этажа из СИП панелей из ЦСП размером 2700*1200*170
мм с антисептированным калиброванным
пиломатериалом камерной сушки (46*140 мм).

Б
Устройство фундаментных свай:

ж/б буроналивные сваи Ф 250 мм, проф. ж/б лента,
ж/б перекрытие.

* Фундамент на выбор (стоимость типа фундаментов
одинакова при отсутствии уклона на участке)

2

Монтаж наружных стен:

Монтаж наружных стен первого этажа и каркасов несущих перегородок

из СИП панелей из ЦСП размером 2700*1200*168 мм с антисептированным калиброванным пиломатериалом камерной сушки (46*140 мм). Монтаж каркасов несущих перегородок из пиломатериала 38*89 мм (76*89 мм).

3

Монтаж крыши и кровли:

пиломатериал 1-го сорта естественной влажности, антисептированный (стропила 50*150 мм, обрешетка, поперечная обрешетка), пароизоляция А, D, утеплитель 150 мм, софиты (С-8 профиль), кровля - металлопрофиль (металлочерепица).

Дополнительные работы

Инженерные коммуникации

1

Электроснабжение (устройство опусков в стены, прокладка эл кабелей ВВГнг, выделение групп, монтаж эл щитка, монтаж УЗО, монтаж автоматов) из расчета 3 точки на помещение по экспликации (две розетки + выключатель)

2

Вентиляция (кухня, санузел/санузлы, фановая труба) естественная вытяжная (разводка труб, монтаж проходных элементов в крыше и кровле, монтаж колпаков/навесов)

3

Отопление (разводка труб с подготовокой для установки концевых приборов)

4

Водоснабжение и канализация (разводка труб с подготовокой для установки концевых приборов

конструктивные работы

Устройство мансардных окон в кровле (крыше).

Устройство крыльца – ступени.

Устройство террасы на первом/втором этаже.

Устройство балкона.

Устройство козырька над террасой, балконом.

Устройство эркера (малые архитектурные формы).

Устройство в крыше «шале».

Устройство окна/балкона- «кукушка» в крыше
мансардного этажа.

наружные работы

Устройство водосточной системы.

Зашивка цокольного пространства листами ЦСП/профилем С8.

Наружная отделка фасада

внутренние работы

Устройство звукоизоляции межэтажного перекрытия; (от 3х этажей).

Устройство внутренних каркасных (не несущих) перегородок с монтажом листовых материалов (ГКЛ, ГСПВ, ЦСП) и устройством утеплителя.

ФУНДАМЕНТ И ПЕРЕКРЫТИЕ – Цена от 1 082 250

Тип фундамента зависит от геологии участка, геодезии участка, подъездных путей к участку, района строительства и других факторов:

При подборе типа фундамента мы также выполняем:

  1. Столбчатый бурозабивной (железобетонные столбы) с СИП панельным или каркасным – наборным перекрытием.
  2. Столбчатый винтовой металлический с СИП панельным или каркасным – наборным перекрытием.
  3. Столбчатый бурозаливной с каркасным – наборным перекрытием.
  4. Железобетоный ленточный с перекрытием.
  5. УШП. Утепленная шведская плита с встроенными инженерными сетями: «теплый пол», водоподготова и водоотведение.
  6. Любой другой вид фундамента, если того требует особенность Вашего участка (сложная геология и геодезия), а также Ваши личные пожелания.

«Базовая комплектация строительства»
Цена от 3 450 850

— это полностью готовый теплый контур дома. В данном случае дом полностью готов к монтажу внутренних инженерных сетей, звукоизоляции

  • Внешние стены — трехслойная СИП панель с ЦСП (h=2700 мм) толщиной 172 мм, утеплитель 148/198 мм на выбор: Пенополистирол или Изовер Сэндвич Лайф. Несущий каркас стен сухая калиброванная доска 46х145/195 мм.
  • Внутренние перегородки-каркас из сухой строганной доски: несущие 46х145 мм.. Стены готовы для обшивки листовыми материалами или декоративной доской.
  • Межэтажное перекрытие: Балки перекрытия БДК 250/300/350х65 мм, верхняя поперечная обрешетка 22х90 мм, сплошной настил листы ЦСП 12-16 мм. Звукоизоляция перекрытия. Пароизоляция перекрытия. Готовность пола и потолка под чистовую отделку.
  • Плоская или скатная утепленная кровля (пароизоляционная пленка, утеплитель вата на основе стекловолокна или базальта, гидро-ветрозащитная мембрана) с покрытием из металлочерепицы, полимерной мембраны или гибкой черепицы. (цена отличается от выбранного типа) (Ширина карнизного свеса от 30 см. Водосточная система в стоимость не входит
  • Доставка, сборка дома, декоративная подшива свесов кровли входит в стоимость! Вы получаете готовый дом без внутренних инженерных систем, окон и отделки.

* В данную комплектацию не входит фундамент. Его тип и стоимость определяется индивидуально в зависимости от особенностей вашего участка.

«ДОМОКОМПЛЕКТ без цокольного перекрытия» - 1 734 984

— материал готов для монтажа стен и укомплектован по проекту. В данном случае дом полностью готов к сборке стен, перегородок, а также каркаса межэтажного перекрытия.

  • Внешние стены — трехслойная СИП панель с ЦСП (h=от 2700 мм) толщиной 172 мм, утеплитель 148/198 мм на выбор: Пенополистирол или Изовер Сэндвич Лайф. Несущий каркас стен сухая калиброванная доска 46х145/195 мм. Сборка в стоимость не входит
  • Внутренние перегородки-каркас из сухой строганной доски: несущие 46х145 мм. Сборка в стоимость не входит
  • Межэтажное перекрытие: Балки перекрытия БДК 250/300/350х65 мм, верхняя поперечная обрешетка 22х90 мм, сплошной настил листы ЦСП 12-16 мм. Звукоизоляционный и пароизоляционный материал приобретается по желанию заказчика дополнительно. Готовность комплекта под чистовую отделку. Сборка в стоимость не входит.
  • Доставка, сборка дома не входит в стоимость!

Цокольное перекрытие437 700 (только для свайного типа фундамента) – утепленный каркасный пол с обвязкой ростверком и сплошной настил листового материала (готовность под чистовую отделку). Сборка в стоимость не входит

Характеристика домокомплекта для перевозки в евро фуре

* В данную комплектацию не входит фундамент и крыша. Его тип и стоимость определяется индивидуально в зависимости от особенностей вашего участка.

* «характеристика еврофуры» длина-13,6м ширина-2,45м, высота-2,5 м, объём-80м3, грузоподъёмность-до 20т

Окна - цена от 428 900

Профиль белый VEKA WXS-60 Стандарт, 2-х камерный стеклопакет от 24 мм, москитные сетки, отливы, подоконники

Примечание

Информация в данном проекте и состав применяемых материалов актуальны для Краснодарского края

Стоимость строительства и состав применяемых материалов для Московской области, Республики Крым и других регионов уточняйте, пожалуйста, по телефонам или электронной почте, указанной в разделе "контакты". Позвольте также предложить Вам воспользоваться "Калькулятором строительства". Обязательно укажите ближайший регион проведения строительных работ. Нужна консультация? Звоните прямо сейчас или оставьте заявку при помощи "кнопки связи".

К небольшому изменению цены могут привести: уклоны на участке, сложные подъездные пути, отсутствие электрического питания и т.п.

Все проекты, размещенные на сайте, являются эскизными и могут быть исходным материалом для создания проекта, согласно Вашим пожеланиям и рекомендациям.

Бесплатный расчёт проекта

Прикрепить файл
Файл не выбран
×

Заказать домокомплект

Прикрепить файл
Файл не выбран
×

Заказать обратный звонок

×

Заказать проект

×

Заказать проект

×

РАСЧИТАТЬ СТОИМОСТЬ БДК

×

Рассчитать стоимость панелей

×

Заявка на кредит

×

Заявка на кредит Почта Банк

×

1. Кровля и кровельное покрытие

Кровля может быть построена из бруса 150х50мм или SIP панелей. В качестве кровельного материала можно использовать: металлочерепицу, битумную и керамическую черепицу. Также производим кровельные шовные сэндвич-панели.

2. Двутавровый потолок

Потолок состоит из двутавровых балок 250 мм, а шаг монтажа балок - 600 мм.

3. SIP Стена

Трехслойная внешняя стеновая панель состоит из:

• два листа цементно-стружечной плиты 12 мм с обеих сторон

• внутренний теплоизоляционный слой с толщиной 148 мм двух типов: полистирол ПСБ-25 (плотностью 25 кг/м3) или минеральная вата ISOVER (плотностью 64 кг/м3).

4. Ростверк

Ростверк изготовлен из калиброванного клееного бруса и защищен снаружи цементно-стружечной плитой